Dupla fürdőszobás, 4 hálószobás szélső sorházi lakás eladó a Liget Lakóparkban
Információk:
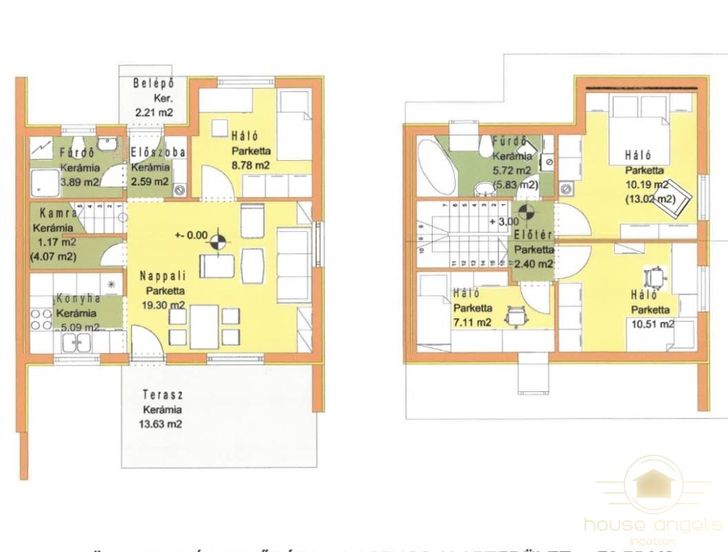
Eladó egy azonnal költözhető, belső kétszintes, 4 hálószobás, dupla fürdőszobás lakás Gyömrő legkedveltebb részén, a Liget Lakóparkban. A bruttó 84 (nettó 77) nm-es lakáshoz tartozik egy 14 nm-es terasz és egy 204 nm-es saját kertrész is, valamint 2 autó számára biztosított a telken belüli parkolás. A földszinten az amerikai konyhás nappalin kívül van még egy hálószoba, egy kamra és egy zuhanyzós-wc-s fürdőszoba is. Igény esetén a nappalival összenyitható a földszinti hálószoba, ezzel biztosítva nagyobb életteret az itt élőknek.
Az emeleten is van egy teljes értékű, kádas fürdőszoba, ehhez is tartozik egy wc, így az ingatlan duplakomfortos, ami szintén fontos szempont lehet lakásvásárlásnál. A három fenti szoba közül jelenleg a két kisebbik szoba össze van nyitva, míg a nagyobbik szinte teljes egészében be van építve szekrényekkel, ami természetesen a vételár részét képezi majd. A maximális helykihasználás érdekében készült egy 3,5 nm-es galériás pakolórész a lépcsőfeljáró fölötti térben, ami igazán egyedivé teszi az ingatlan belső kialakítását. A padlástér is alkalmas extra pakolásra, itt bruttó 40 nm áll rendelkezésre. A kerti szerszámok tárolására az udvaron 2 db kerti tároló is van, az egyik 6, míg a másik 3 nm-es.
A házban a fűtést és a melegvizet kombi cirkó kazán látja el lapradiátorokkal, a fürdőszobákban padlófűtéssel, míg egy pluszban felszerelt okosbojler biztosítja az azonnali melegvíz-ellátást. A lakásban 2 db hűtő-fűtő klíma felel a hűtésért, míg az alternatív fűtésre kandallókémény nyújt esetlegesen megoldást.
Az ingatlan egy 810 nm-es telken fekvő 4 lakásos társasház szélső (D jelű) lakása, a lakások közt pedig dupla téglafal és a közte elhelyezett 4 cm-es hang- és hőszigetelő polisztirolhab biztosítja a teljes hangszigetelést. Az ingatlan albetétesítve van, így könnyen átruházható és hitelezhető is.
A lakópark Gyömrő elején található, alig 5 percre az M0-ás autóúttól, így autós közlekedés szempontjából nagyon jó a lokáció. De a tömegközlekedés is kiváló - alig egy kilométerre van a gyömrői vasútállomás, de a közelben van a helyi járat buszmegállója is, így könnyen be lehet jutni Gyömrő központjába is. A lakópark közössége összetartó, sok a kisgyermekes család és a fiatal, így mindig van valami kis program az itt élőknek. Nemrég adtak át egy modern, új óvodát a lakóparkban, de iskola is van a közelben, így jó választás lehet olyan családoknak, akiknél nagyobb gyerkőcök (is) vannak. A lakóparkban található még ezen kívül élelmiszerbolt, termelői piac, kondipark, játszótér, kutyafuttató és számos szolgáltatás is, mint pl szépségszalonok vagy éppen jógastúdió.
Kérdés esetén keressen bizalommal!
Ingyenes hiteltanácsadással, ügyvédi kapcsolattal és rugalmas időbeosztással állunk kedves ügyfeleink rendelkezésére!



























































































