Eladó garázsos ikerházak Pécelen, panorámás környezetben
Információk:
Magas műszaki tartalommal megvásárolható Pécel egyik kedvelt részén 2 db ikerház-fél. Még mindkét lakás szabad, így választható még a keleti vagy a nyugati fekvésű is. A panoráma a nyugati lakásból élvezető, de mindkettő terasza északi fekvésű, így nyáron már kellően árnyékos a kinti sütögetésekhez.
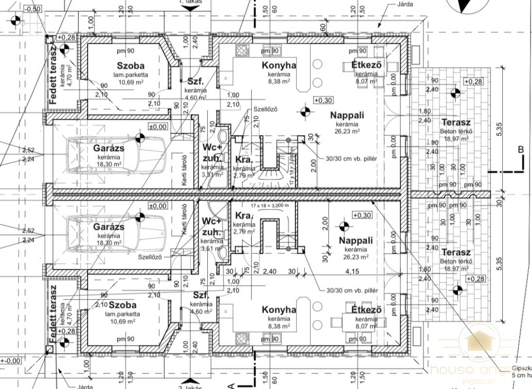
A garázsos, hőszivattyús és szellőztető rendszerrel kialakított házak 148 nm-en kínálják a kényelmes életteret a családok számára. A földszinten 1, míg az emeleten 3 hálószoba található. Gardróbból is van 2, míg a fürdőszobákból is jutott egy a földszintre és egy az emeletre is. Ezen kívül az emeleten külön háztartási helyiség, a földszinten pedig egy kamra is található. A háznak van egy elő és egy hátsó, elszeparált terasza. Az első terasz 5 nm-es, a fölszinti szobából közelíthető meg, míg a hátsó terasz közel 20 nm-es, és a nappalihoz kapcsolódik.
Egyéb extrák:
- rejtett redőnytokos, motoros vezérlésű aluredőnyök minden nyílászárón szúnyoghálóval
- kiépített riasztórendszer + kameraelőkészítés 4 külső ponton
- elektromos garázskapu
- okosotthon előkészítés
- napelemhez szükséges alapcsövezés kiépítése
- víztisztító rendszer
A ház fűtését és melegvízellátását padlófűtéssel a hőszivattyú biztosítja, míg a hűtést szellőzőrendszeren keresztül szintén a hőszivattyú látja el. A házba 3 fázis van bevezetve, összesen 52 Amperrel, a garázsban pedig elektromos autó töltésére kialakított csatlakozó is kiépítésre került.
A beltéri ajtók, a kapcsolók és a burkolatok is választhatók (8000 Ft - hideg, 6000 Ft- meleg). A teljes belső kialakítás így az új tulajdonosra vár, de az ár a teljes, kulcsrakész házra vonatkozik. Várható átadás: 2025. szeptember.
A kert teraszos kialakítású, támfallal megerősítve a bal és jobb oldali szomszédok felőli oldalon egyaránt. Az antracit, gondozásmentes utcafronti kerítés szintén a teljes vételár részét képezi.
Az utca ugyan nincs aszfaltozva, de folyamatosan karbantartott, és sokszor itt találkoznak a lakók egy kiadós beszélgetésre séta közben.
A környéken számos kirándulási lehetőség van, de a közelben található játszótér, cukrászda, konditerem és számos egyéb szolgáltató is. A városban kiváló a közlekedés - a helyi járat a háztól alig pár perc sétára áll meg, a kék buszhoz ezzel, vagy akár gyalog is könnyen el lehet jutni. A kék busz az Örs vezér térig közlekedik, üzemzárást követően pedig éjszakai járat váltja fel. Elővárosi vonattal a Keleti pályaudvarra juthatunk be, alig több, mint 23 perc alatt. A vasútállomás felújítása óta a biztonságos és kellő létszámú parkolóhely miatt ez a legközkedveltebb bejutási forma a péceliek körében.
Ovi, iskola szép számban található a városban, és a bevásárlási lehetőségek is folyamatosan bővülnek. Az Auchan-Bauhaus közelsége szintén sok embernek kényelmes alternatívát biztosít. Az M0-ás közelsége pedig az autósoknak jelent nagy segítséget.
Bővebb műszaki tartalom miatt keressenek bizalommal.
Kérdés esetén keressen bizalommal!
Ingyenes hiteltanácsadással, ügyvédi kapcsolattal és rugalmas időbeosztással állunk kedves ügyfeleink rendelkezésére!


























































